0120-34-0909
中古リノベに役立つ情報を随時公開!
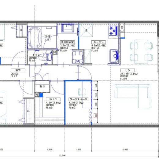
滝ノ水のリノベーション済みマンション|ビフォー・アフター図面で見る間取りの変化
こんにちは!中一不動産/ホームタウンです。 前回は、なぜ滝ノ水で中古マンションを選んだのかについてお話しました。 https://hometown0909.com/column/3867 今……
VIEW MORE
受付時間 9:00-18:00
定休日 毎週水曜日
来場予約
いつでもお越しください
資料請求
機能・料金・よくある質問(Q&A)など
お問い合わせ
お気軽にご相談ください