コラム
中古リノベに役立つ情報を随時公開!

- 2026.02.27
- 名古屋市緑区
名古屋市緑区のリノベーション済みマンション|ビフォー・アフター図面で見る間取りの変化
こんにちは!中一不動産/ホームタウンです。
前回は、なぜ滝ノ水で中古マンションを選んだのかについてお話しました。
今回は、実際に購入した滝ノ水のリノベーション済みマンションの間取りを、ビフォー・アフター図面とともにご紹介します。
図面を見ると、「変わった部分」だけでなく、「なぜそうしたのか」まで見えてきます。
これから滝ノ水で住まいを検討される方の参考になれば嬉しいです。
リノベーション工事も進んでいて、3月に完成予定!お楽しみにしてください。
ビフォー図面|整っているけれど、少しだけ惜しい

もともとは和室を含む3LDK。
住友不動産分譲ということもあり、決して悪い印象はありませんでした。
ただ、実際の暮らしを思い浮かべると、いくつか気になる点もありました。
・リビングと和室の使い方が曖昧 ➨ 和室が6帖と広く、リビングが狭い印象に
・キッチンから洗面室にいける2wayだが、実際カップボードを送すベースがなく、扉はふさがってしまう
・キッチンが閉鎖的
以前の間取りは“部屋数を確保する設計”。
今の暮らし方とは、少しだけ考え方が違っていたように思います。
この年代の特徴であるキッチンは閉鎖的な造り。リビングは見渡せません。

今は吊戸棚がなくても、収納力は十分あるので、リノベと定番ともいえる吊戸棚は撤去です!

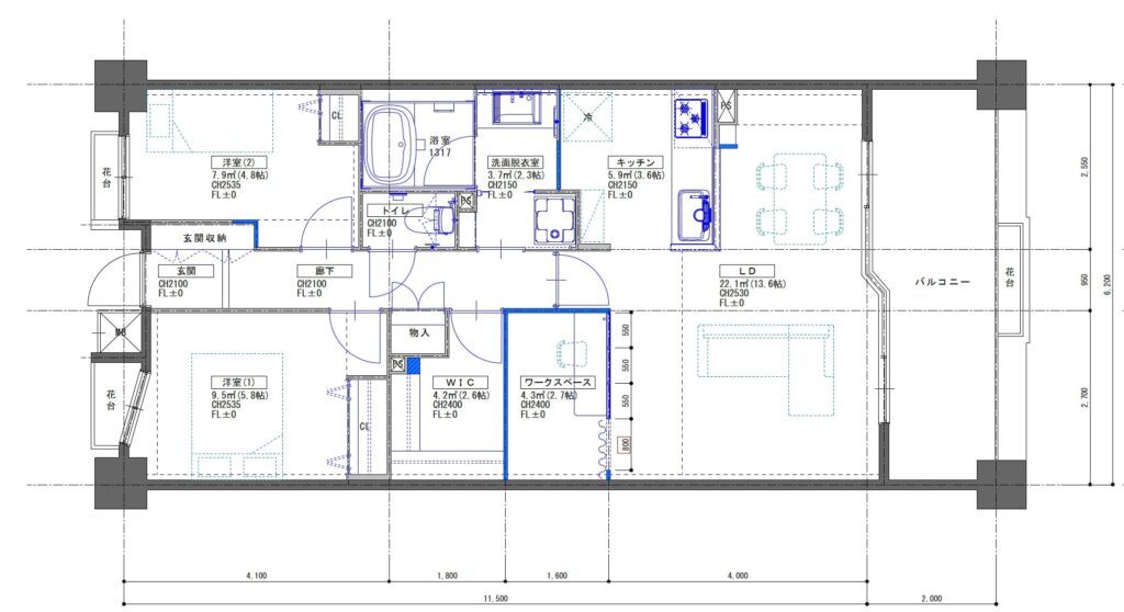
アフター図面|暮らし方から逆算した間取りへ

今回の滝ノ水でのリノベーションでは、間取り上は和室をどう使いやすくするか、に焦点をあてました!
・リビングを中心に空間を再構成 ➨ 17帖の広いLDKに!
・居室のクローゼットに加え、ファミリークロゼットを完備!
・ワークスペースはリビングから見えるような室内窓を!
・キッチンから洗面室への扉はなくしました!
和室をリノベーションするだけで、印象や体感はまったく違います。
キッチンからリビング全体が見渡せるようになり、
家族の気配が自然と感じられる空間になりました。
ゆるやかにワークスペースと繋がることで、お子さんの勉強スペース、お父さんのリモートワーク、お母さんの趣味部屋など、いろいろな意図でつかえるスペースです。
ペットと暮らす前提で考えた住まい
このマンションを選んだ理由のひとつが、ペットと暮らせることでした。
滝ノ水エリアは緑も多く、散歩環境も整っています。
だからこそ、室内の仕様にも配慮したいと考えました。
床材には
朝日ウッドテックの
ペット対応フローリングを採用。
突板フローリングですが、滑りにくさに配慮された素材です。
間取りだけでなく、こうした細かな部分もリノベーションの大切な要素だと実感しました。
滝ノ水のリノベーション済みマンションという選択
新築ではなく、中古マンションのリノベーション済み物件。
滝ノ水という住環境の良さがあるからこそ、
「立地を優先し、室内は整える」という選択がしっくりきました。
リノベーション済みマンションは、完成された住まいに見えますが、
その背景には“どう暮らしたいか”という考えがあります。
なかでも「リビング真ん中の和室をどうにかしたい!」というのは、多くのお客様がおもうところだと思います。
図面を見ることで、その違いはよりはっきりと感じられるはずです。
中一不動産/ホームタウンのリノベーション済み物件では、お値打ちな価格で、大きな間取り変更を伴わなくても、暮らしやすい工夫のつまったデザインを心掛けています!
次回は、具体的なこだわり、デザイン面などに触れながら紹介していきますね!
・磁石がくっつく壁紙
・ドライオークというグレイッシュな風合いのフローリング
・間接照明のある洗面台
・エコカラットのある玄関
など、通常のリノベーション済み物件では得られないこだわりの空間があります。
また、一部壁紙はお客様に選んでいただけるセレクトクロスもあります。
お楽しみに!
滝ノ水エリアで中古マンションを探している!という方がいらっしゃれば、是非お問合せくださいね。





