リノベーション事例
お客様一人ひとりのワクワクを実現する、オンリーワンの空間です!
光と木のぬくもりが広がる住まい
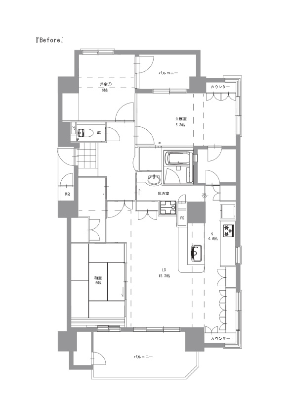
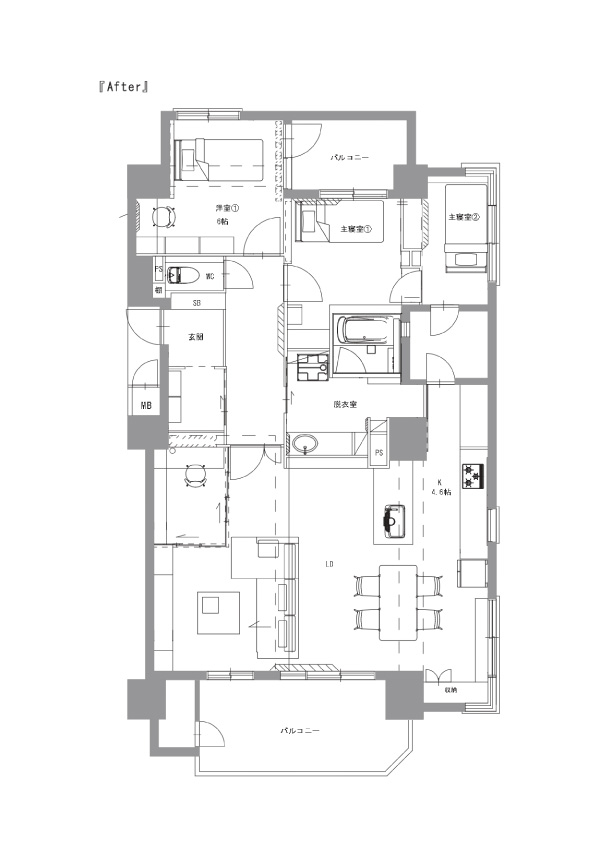
- 中古マンション
■ リビング
和室だった空間を取り込み、広がりのあるLDKへ。
木のぬくもりを感じる天井とやわらかな光が、家族で過ごす時間を心地よく包み込みます。
■ 玄関
素材感のある壁をアクセントに、明るく落ち着いた印象の玄関に。
住まいの第一印象をやさしく彩る空間に仕上げました。
HOUSE DATA
基本情報
- 間取り
- 3LDK →2LDK
- 構造
- RC造
- 所在地
- 愛知県豊田市
- 家族構成
- ご夫婦+お子様
注目ポイント
- 和室を取り込み、開放感のある広々LDKへ間取り変更
- 木の天井が印象的な、ぬくもりを感じるリビング空間
- 水回りはすべて新品に交換、黒で統一した落ち着いたデザイン
- 収納とデスクスペースを備えた、機能的な子ども部屋
- 玄関には素材感のあるアクセントを施し、印象的な空間に


























